Ejemplos de Proyectos Básicos
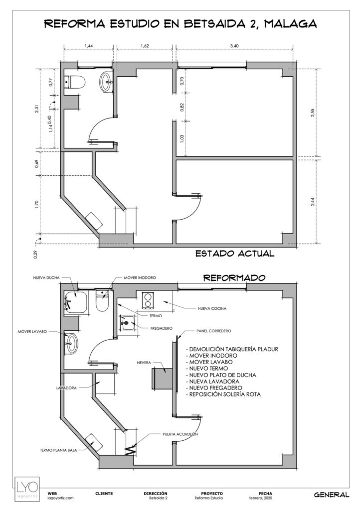
Galería de imágenes de ejemplos de Proyectos Básicos, el punto de partida para la elaboración de cualquier proyecto o reforma, que incluye la toma de mediciones, pasar a plano dichas mediciones y estudiar bien las distintas distribuciones para sacar el máximo partido a los metros disponibles.
Pulsa en las imágenes para verlas más grandes:































