Proyecto de Interiorismo y Reforma Integral de Vivienda en C. Saltillo 10, Torremolinos. Diseño de Interiores 2025.
Proyecto de interiorismo y reforma integral de vivienda en calle Saltillo 10, Torremolinos.
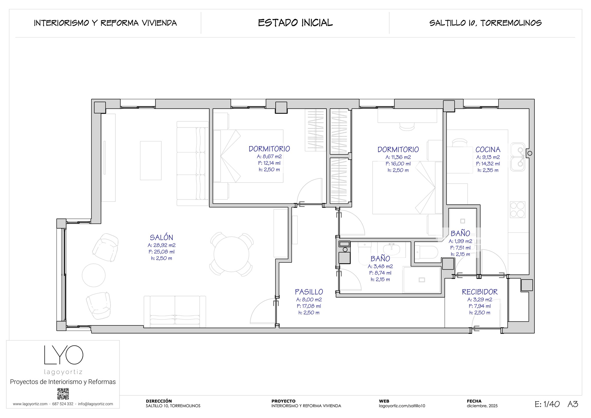
Vivienda de dos dormitorios y un baño y un aseo en Torremolinos, que necesita una reforma integral para adaptarse a los nuevos propietarios.
Se buscan dos dormitorios amplios, el principal con amplios armarios y zona de trabajo, y el secundario con cama doble y litera, dos baños completos, una cocina más pequeña justo al salón, y una zona de salón-comedor amplia y luminosa, así como actualizar y modernizar todo el piso.
Pulsa en las imágenes para verlas más grandes:
























