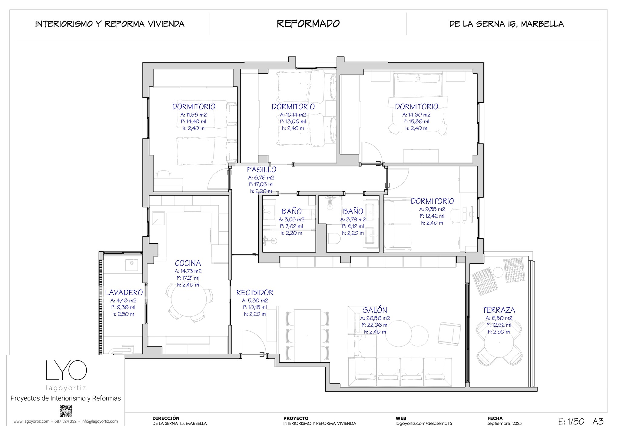
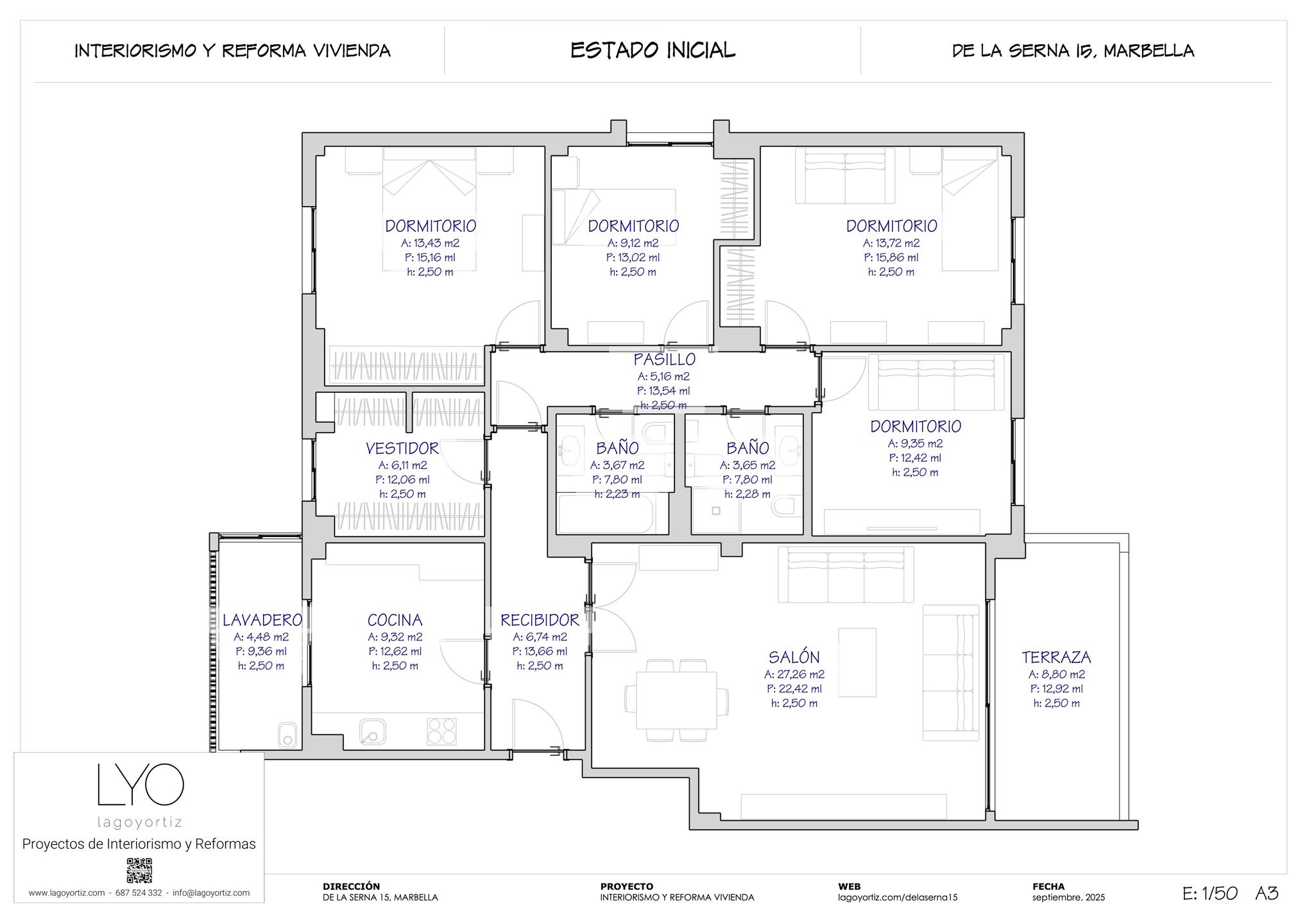
Proyecto de Interiorismo y Reforma Integral de Vivienda en C. Ramón Gómez de la Serna 15, Marbella. Diseño de Interiores 2025.
Proyecto de interiorismo y reforma integral de vivienda en calle Ramón Gómez de la Serna 15, Marbella.
Vivienda de cuatro dormitorios y dos baños en el centro de Marbella, que necesita una reforma integral para adaptarse a los nuevos propietarios.
Se busca maximizar los espacios y el almacenamiento. Para lograrlo, se redistribuyen todos los dormitorios, se amplía la cocina y se abre el salón al recibidor.
Pulsa en las imágenes para verlas más grandes:



























































