Carolina Park, Marbella, 2019-2020.
Galería de imágenes de la reforma integral de un apartamento – estudio en Marbella que se dedicará al alquiler vacacional.
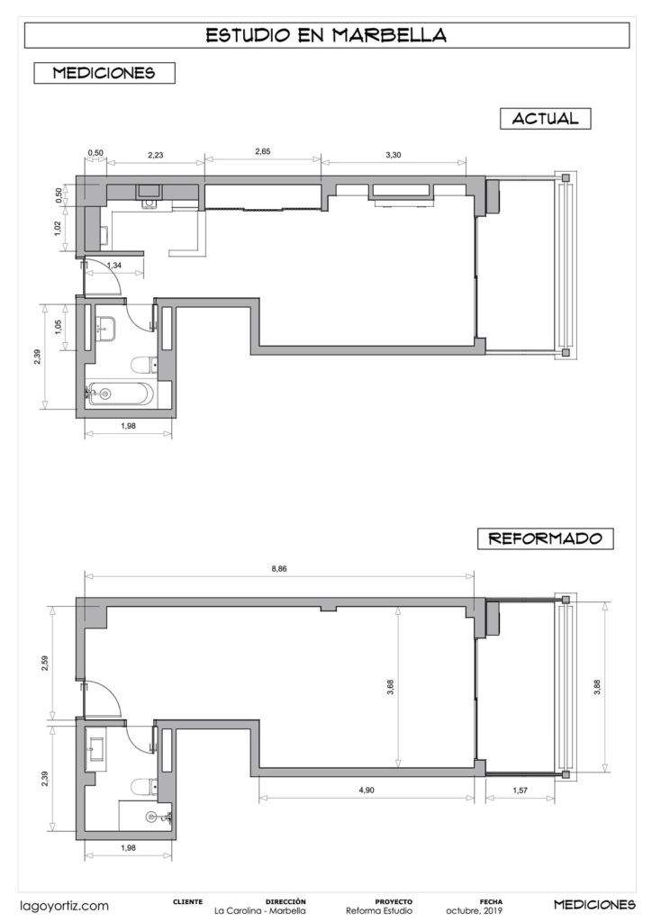
Imágenes del estado original, del proyecto de interiorismo, durante la reforma, y el estado final.
Visita la página donde contamos todo el proceso:
lagoyortiz.com/reforma-integral-de-apartamento-para-alquiler-en-marbella
Para ver el apartamento listo para alquilar, visítalo en AirBnB:
www.airbnb.es/rooms/43868659
Puedes ver el vídeo de la galería en YouTube:
youtu.be/9XD3ALjC_uw
Pulsa en las imágenes para verlas más grandes:






























